About

Update Index

 

UPDATE No 34

RIVER HOUSE

In 1917 Samuel South(2)and his wife, Maud, together with their seven children moved from Snells Park, Edmonton, to River House, Devonshire Hill Lane, North Tottenham. Joyce, the youngest child, was born at River House in 1918. The house had been bought by his father, Samuel(1), in 1912 and was occupied by the Field family until ownership passed to Samuel(2) following the death of his father in 1919.

River House was so called because a section of the abandoned Tottenham loop of the New River passed through the grounds. The house was a rambling L shaped building with a, formerly separate, cottage comprising the west wing. At an unknown earlier date, the two properties had been connected by a construction known to the South family as the "Stone Passage". The cottage wing was demolished in 1927 and an extension added to the east end of the main house. Later, in 1937, the property was demolished with the exception of the 1927 addition which remains today as 133, Devonshire Hill Lane.

It has long been the ambition of the Update to recreate River House and this aspiration has been realised. By reference to maps, photographs, family memories and drawings, Dave Marden* has produced the elevation and floor plans that are published in the following pages. Reasonable assumptions have been made where precise detail is unknown but it is believed that the drawings are a substantially correct representation of River House.

Any comments, suggestions or information about either River House or the plans would be welcomed.  

*In the 1950s Dave Marden lived at Wayside Cottages, White Hart Lane (formerly Tentdale, the one time home of Samuel South(1) and his family) and his father was employed at E G Cole & Sons.  The Update would like to express its thanks to Dave for the magnificent plans that he has produced.     

 

RIVER HOUSE


River House - North Elevation pre-1927


River House - South Elevation pre 1927

RIVER HOUSE ELEVATIONS - PRE 1927


North Elevation - pre 1927


South Elevation - pre 1927

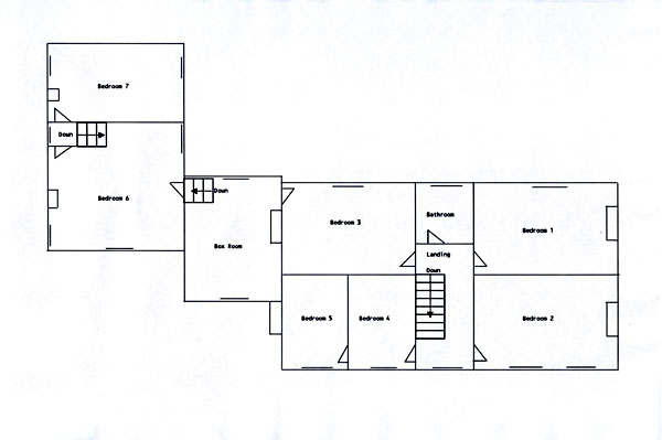
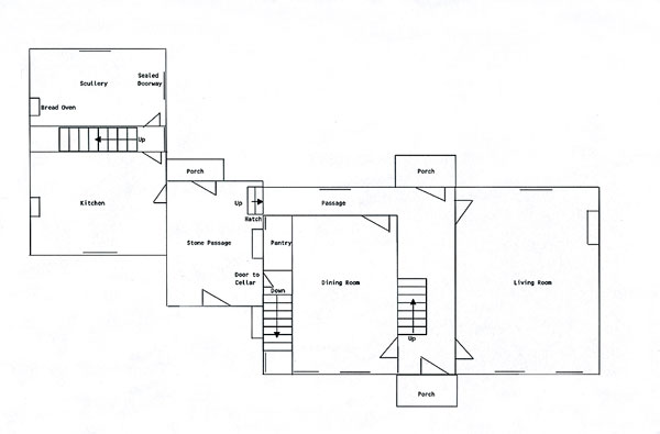
RIVER HOUSE FLOOR PLANS - PRE 1927


Ground Floor Plan - pre 1927


First Floor Plan - pre 1927

RIVER HOUSE ELEVATIONS - POST 1927


North Elevation - post 1927 


South Elevation - post 1927

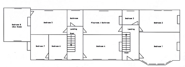
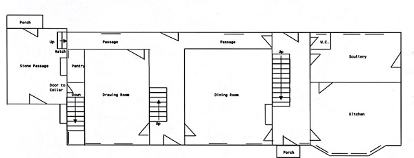
RIVER HOUSE FLOOR PLANS - POST 1927


Ground Floor Plan - post 1927


1st Floor Plan - post 1927

SOME MEMORIES OF RIVER HOUSE

Hilda Beech (1902-1995)

River House was large and rambling and had its own well in the courtyard at the back [north elevation]. It is difficult to imagine how attractive and rural this area was not so long ago. The lanes were narrow and hedge lined, and from River House there was an uninterrupted view to the Downhills. On a clear day the dome of St. Paul's could be seen. Through the grounds an old loop of the New River made its way to Wood Green, whilst opposite River House was a stile to a footpath along the banks of the river which led to Weir Hall. It was a favourite spot for walks and picnics in the fields.

1983

Gladys Short (1906-2001)

River House was an interesting house inside with an older wing extremely cold and inconvenient inside. Rough stone scullery floor, a large walk in larder another store used for coal and a huge bread oven. Granny [King] had a bed-sitter over the old kitchen. The door most used opened onto a York paved floor [Stone Passage], very cold A door led to the cellar and there was a wooden rack hanging from the ceiling evidently used to dry bacon etc. at one time. Up two steps probably to what was a serving pantry, then the two fairly large sitting rooms. Upstairs three bedrooms all ran into each other, not very private! Two separate bedrooms and two small ones in the side wing, later they were used by the living in maid. Imagine the old kitchen with an iron cooking range, very large dresser, dozens of shoes and boots kept underneath.

1991

Jim South 1912-

The house was in fact two separate houses that formed an L. The older part of River House was a cottage of brick and pantiles [and] they were joined by a curious piece of building we always called the stone passage. The constructors had simply built over the existing stone slab paved courtyard to effect a link between the two houses. The floor of our kitchen looked very attractive 1 foot square red baked clay slabs, but being laid on a thin layer of ash soon rotted any covering laid over them. The pantiled roof had very primitive carpentry, some of the roof beams being split tree trunks with the bark still on.

1996

The River House cellar was prone to flooding and needed to be pumped out. A wine bin was used for storing jellies, blamanges and eggs pickled in Isinglass. There was an ice chest and copper in the kitchen and an oval bread oven  probably built before house as it extended into next room and outside. The larder had slate shelves for settling pans. Above the fireplace there was a musket rack.

1997

Joyce Barker 1918-2001

The old part of the house was divided by the stone passage with a big kitchen range and copper in the corner. There was a cage alongside the older part where Charlie kept a Jackdaw and also a large water butt in which my brothers kept tadpoles. When the extension was built the dining room and drawing room were changed over. Upstairs the new part was connected by a room we used to call the play room which had a bath in it and a very fierce gas heater. It made a lot of difference to sharing a small bathroom with such a large family. We used to take kettles of hot water to wash. The extension had a large kitchen with lots of cupboards and a very large scullery with a walk-in larder. The gas lighting in the new part could be operated by a switch.

1997

KLB 9/02

About

Update Index